3D外壳设计
插件版小智AI机器人3D外壳
工程文件下载
外壳设计已经上传到3D模型库,有需要的小伙伴可以直接下单生产
📌 模型链接:https://www.jlc-3dp.cn/model/modelDetail/8f0b02cb75a843408b509ec2f46c1b13.html
嘉立创外壳设计介绍
嘉立创EDA专业版支持简单的3D结构件设计:
![]() | ![]() |
|---|---|
大家设计的时候可以根据自己项目的情况选择对应的结构设计。而小智AI项目为了方便拆下来下载固件,选择的结构是上下壳式设计。
![]() |
|---|
外壳实时预览
为了方便预览我们设计的外壳效果,可以打开实时预览界面。
打开PCB后,在PCB界面开启3D外壳预览。会弹出新的界面。
![]() |
|---|
![]() |
|---|
外壳边框设计
点击放置 -> 3D外壳-边框 -> 矩形。
![]() |
|---|
放置外壳边框时将我们的PCB包含起来。设置外壳宽高68.53 x 48.148mm,外壳整体高度36mm,下壳高度18mm,外壳厚度3mm,同时尽量让外壳与PCB板框之间预留一些位置,防止实物打印精度误差导致的无法安装外壳问题。
![]() | ![]() |
|---|---|
这个界面中外壳线的宽度就是实物外壳的壁厚。了解壁厚的展示方式后,对我们后面设计和对齐PCB实物尺寸时很有帮助。
![]() |
|---|
现在我们的简单外壳就做好了,但是我们如何固定上下壳呢?我有两种方法:
- 可以通过延展上壳内壁或者延展下壳内壁的方式固定
- 设计螺丝定位孔固定
外壳固定设计
延展内壁方式
点击PCB界面中的外壳线,在右边的属性栏中,设置是使用上壳内壁还是下壳内壁,使用哪一个就设置哪一个内壁为多长。比如设置上壳内壁为6mm。
![]() | ![]() |
|---|---|
根据实测,设置为 6mm 后,基本不会松动。效果见下方GIF动图

但以防万一,再加一个螺丝孔固定的方式。
螺丝孔固定方式
选择 放置 -> 3D外壳-螺丝柱
![]() |
|---|
放置螺丝柱时需要确保你的PCB上也有螺丝孔才行,不然也无法固定。比如参考案例中,我们的PCB在四个角落都放置了 M3 尺寸的螺丝固定孔,在放置外壳的螺丝孔时需要对上我们PCB上的螺丝孔。
在放置螺丝孔时,可以选择是在上壳放置还是下壳放置。还有沉孔+加强筋设计。
沉孔
按上螺丝后,螺丝头多出来的部分正好可以跟外壳平行,不会让螺丝突出。 
加强筋
防止强力扯坏螺丝孔柱,使用加强筋在螺丝孔四周固定。

小智AI项目中使用的是下壳螺丝柱,使用沉孔,不使用加强筋,螺丝孔高度17mm
![]() | ![]() |
|---|
外壳正面设计
小智AI项目的外壳设计模板是参考的复古电视外形。 
根据我们项目的情况,正面就只要考虑:屏幕显示区 + 按键区 + LED灯区。 
首先是屏幕区的设计。选择 放置 -> 3D外壳-顶面/底面挖槽区域 -> 矩形。 
对准PCB屏幕的显示区域放置该挖槽区域,并设置为顶层挖槽,宽高:35.239x29.501mm,圆角半径5mm,挖槽深度15mm。

设置按键区和LED灯区挖槽
按键区域:以按键中心为圆心,放置一个半径为3mm,挖槽深度为15mm的圆。

LED灯区域:以LED灯中心为圆心,放置一个半径为2.7mm,挖槽深度为15mm的圆,并再放置一个顶面圆型实体,拉伸长度13mm,半径3.6mm。
![]() | ![]() |
|---|---|
普通的DIY到这里就结束了,但是为了更加的精致,可以在正面再挖槽个2mm深度,预留出面板的位置。面板上可以自行设计LOGO,图标和项目名称等标识,加大项目辨识度。

到时候设计一个厚度2mm的亚克力面板,上面放一下图标即可。

外壳背面设计
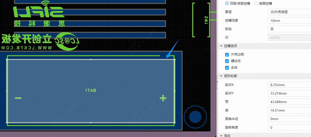
目前外壳底面已经有了4个螺丝孔位,我们还需要预留电池安装接口,喇叭声音播放接口。 电池安装接口:在背面的电池区域挖槽一个深度10mm的矩形方便放电池。再基于这个矩形大一圈的位置,放置一个挖槽2mm矩形,用于放电池区外壳盖板。
![]() | ![]() |
|---|---|
再放置一个方便抠电池盖板的小区域,一个挖槽2mm的矩形。

喇叭声音播放接口:为了对齐优雅的展示,选择了放多段长扁的小矩形,形成栏杆样式。

完整效果:

外壳侧面设计
外壳侧面主要就是开一个槽,让用户能够触摸并控制到电源开关。还有麦克风区域也挖槽方便收音。
但是外壳设计就比较复杂,需要先放置侧面基准线,然后根据基准线设计外壳。
放置侧边基准线:
![]() | ![]() |
|---|---|
基于侧边基准线,放置挖槽8mm的矩形,该矩形是为了让电源拨动开关漏出来。为了更加优雅,在挖槽8mm矩形的周围,再放置一个挖槽2mm的矩形。
![]() | ![]() |
|---|---|
完整效果:

外壳键帽
因为嘉立创的外壳只有两个结构件,上壳和下壳。如果单独设置一个结构件就需要单独开一个PCB界面。这里就直接给大家提供3D文件,可以去 嘉立创3D打印 官网上传文件查看。
外壳下单与打样
外壳下单使用的是嘉立创3D外壳打印业务,下单地址:嘉立创3D打印3D打印服务平台在线3D打印报价_三维猴一站式3D打印服务厂家
下单参数:(材料也可以选择最便宜的X树脂)






















